- Woonoppervlak 20721 sq ft
- Perceel 43626 sq ft
Map
Property Info
1418763-nl
New
4053
Object kenmerken
Array
Array
Array
Array
Array
Property Description
Ruime Opslagloods in Seru Lora te Koop
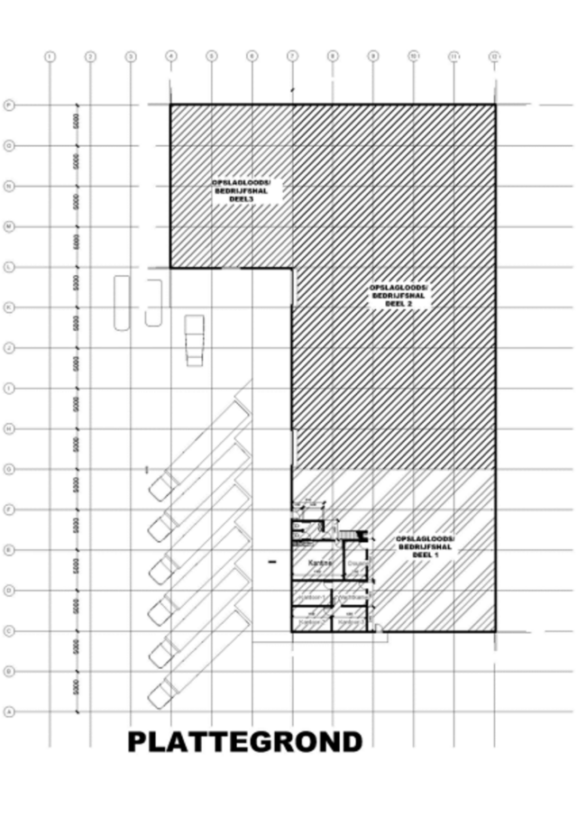
In Seru Lora is een ruime opslagloods van 1925 m2 oppervlakte te koop. Het terrein heeft een totaal oppervlakte van 4053m2 groot (80m x 50.6 m). De loods heeft 2 overhead-deuren van 4000 mm x 4500 mm met elektri- sche bediening 220V/50 Hz en 4 stuks stalen loopdeuren van 1000 mm x 2125 mm.
Hierbij zitten de voorzieningen voor 6 betonnen laadperrons voor 20 en 40 ft containers met de nodige infrastructurele aanpassingen uitgevoerd direct aangrenzend aan de loods.
Aan de Seru Loraweg zijde kan de loods ruimte eventueel geleverd worden met kantoorruimtes (100m2) voor het personeel ,een kantoorruimte voor de douane met aparte opslagruimte voor “in-bond goederen” (60 m2) inclusief toiletgroepen voor zowel dames en heren. Beide kantoorruimtes kunnen uitgevoerd worden in een mezzanine opstelling in overleg nader te bepalen. De kantoorruimtes worden voorzien van airco installaties (totaal 6 stuks ) en ingedeeld naar behoefte.
Toiletvoorzieningen ( 2 toiletgroepen) voor zowel kantoorpersoneel als personeel werkzaam in de loods. Brand Preventie voorzieningen volgens aanwijzing van de brandweer.
Technische gegevens
Europees fabricaat en kwaliteit geleverd vanuit Nederland
Oppervlakte: Loods totaal 1925 m2 bestaande uit 1 loods gedeelte 25 x 65 m (goothoogte 5 m en nokhoogte 9,55m) en 1 gekoppelde loods gedeelte 15 x 20 m (goothoogte 4 m en nokhoogte 5 m).
Overspanning: Vrije overspanning spanten 25 m met portaalspanten h.o.h. 5.00 meter.
Behandeling: Thermisch verzinkt
Profielen: Volgens standaard Nederlandse normen.
De staalconstructie bestaat uit:
- Kolommen en windverbanden verankerd in gewapend betonnen poeren op poerplaten met ingestorte hoogwaardig staalkwaliteit ankerbouten;
- Portaalspanten en Kopgevelspanten;
- Kozijnen (frames) t.b.v. deuropeningen en overhead deuren;
- Drukkokers;
Gordingen: Verzinkte Z-gordingen 275 grams
Dakbeplating:
- Sandwich panelen 100mm (60mm foam PIR AMC01) met hairexcel coating 60 mu RAL 9010
- Vlakke buitennokken in kleur RAL 9010;
- Vlakke binnennokken kleur RAL 9002 voor de afwerking;
- Filters voor onder de buitennok;
- Windveren voor op de kopse kanten;
- Benodigd bevestigingsmateriaal voor de dakplaten en zetwerk.
Loods gevelwanden: Het geheel wordt tot aan goothoogte opgemetseld met 6” betonblokken
Tussenwanden inpandig: 4” en 6” Holle betonblokken en/of Drywall Scheidingswanden.
Een en ander niet in de prijs opgenomen.
Deuren:
- 4 stuks stalen loopdeuren met kozijn (afmeting 950 x 2210 mm) kleur wit RAL 9002;
- 2 stuks geïsoleerde overhead-deuren dagmaat 4000 x 4500 mm kleur wit RAL 9002 elektrisch bediend 220V/50Hz.
Goten :
- PVC dakgoten 205 mm breed aan dakvoeten (beide kanten) van het dak;
- Gootbeugels gegalvaniseerd staal (muur montage);
- Koppelstukken;
- Eindkappen;
- Hemelwaterafvoeren.
NOTE : Dakplaten uitgevoerd met extra coating 60 mu i.v.m. klimaat.
Brandinstallatie: De door de brandweer Curaçao vereiste brandweerinstallatie, zijnde brandblusapparaten en brandslanghaspels zijn onderdeel van het project en worden meegeleverd.
Vraagprijs: 4.000.000 Nafl k.k.
excl. OB inclusief infra.
Oplevering gepland voor April 2025
Bouwkwaliteit
- Newly Build
Lot Status
- Property
Cool & Heating
- Airconditioning
Rooms
- Office
Possible use of the property
- Office
- Warehouse











